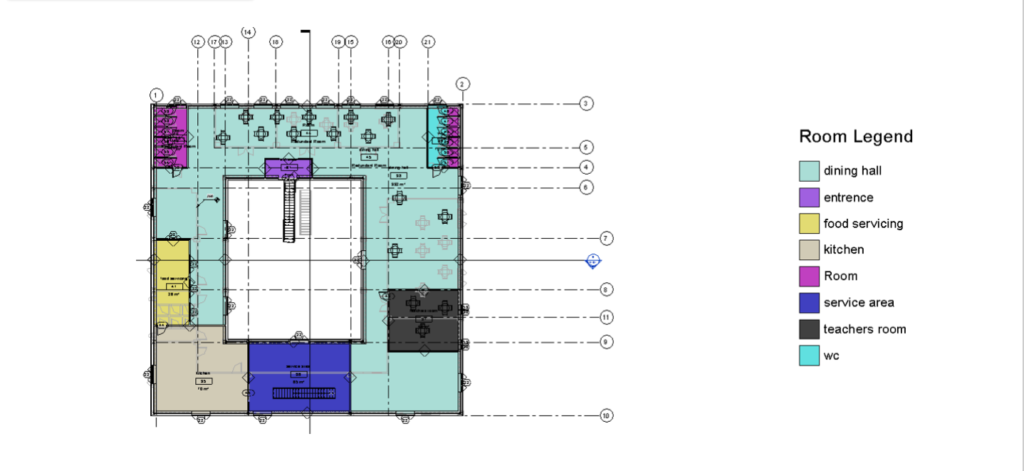
Design Strategy
-To make children be able to run inside, the building has a closed shape.
-Since children need to be protected and someone should keep an eye on them, the building has an inner courtyard. This courtyard also gives children the oppurtunity of playing outside.
-Teacher’s room is seperated into two floors to being able to observe the kids all the time.













